
Abwassersystem
Vorgefertigte Beton-Kontrollschächte für Abwassersysteme dienen zum Sammeln und Ableiten von Abwasser und Regenwasser sowie zur Wartung, Kontrolle und Reinigung des Systems.
Wir fertigen sie klassisch mit Betonboden und mit Kunststoffboden, der den Schacht vor den schädlichen chemischen Einflüssen der Abwasserflüssigkeiten schützt. Die erforderliche Schachthöhe wird durch die Verwendung von vertikalen Verlängerungen entsprechender Höhe und konischem Ende oder Stahlbetonplatten erreicht, auf denen der Gusseisendeckel direkt montiert wird.
Alle Ecken der Rohrleitungsführung werden im Schachtboden aus Beton oder Kunststoff gelöst. Betonschächte können Kaskadenanschlüsse in einer vom Kunden festgelegten Höhe aufweisen. Alle Rohrverbindungen, Fugen, Dichtungen und die Schachtkonstruktion sind so konzipiert, dass sie wasserdicht sind.
In der Tabelle sind die Abmessungen des Fensters, die Elemente, aus denen es besteht, und die möglichen Arten der Fensterbasis aufgeführt:
| FENSTERNAME | Schachtmaße (helle Öffnung) | ELEMENTE, AUS DENEN EIN FENSTER BESTEHT | BASISTYP | MAXIMALE GRÖSSE ROHRANSCHLUSS | 
|---|---|---|---|---|
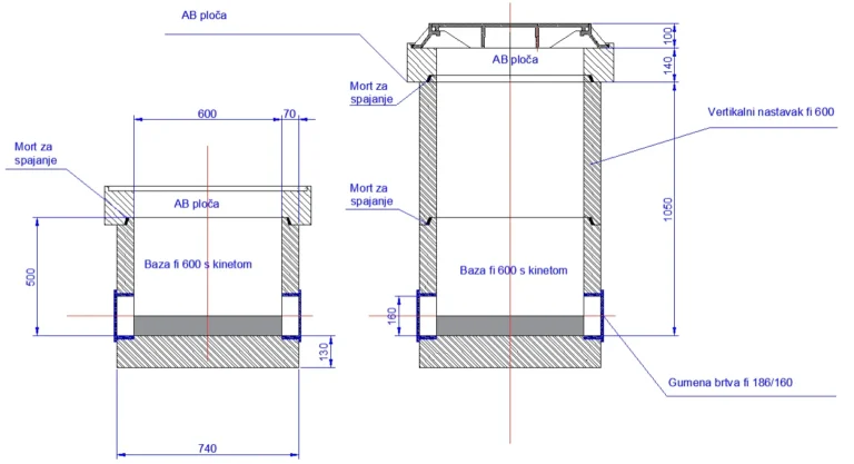
| Betonfertigteile Inspektionsschacht KBS 600 | DN 600 mm | • DN600-Basis • AB Vertikalelement DN600 • Stahlbetonplatte DN600 | mit Betonboden mit Kunststoffboden | DN 200 mm DN 250 mm | 
| Betonfertigteile Inspektionsschacht KBS 800 | DN 800 mm | • DN800-Basis • AB Vertikalelement DN800 • konisches Ende DN800 oder Stahlbetonplatte DN800 | mit Betonboden mit Kunststoffboden | DN 300 mm DN 300 mm | 
| Betonfertigteile Inspektionsschacht KBS 1000 | DN 1000 mm | • DN1000-Basis • AB Vertikalelement DN1000 • konisches Ende DN1000 oder Stahlbetonplatte DN1000 | mit Betonboden mit Kunststoffboden | DN 600 mm DN 600 mm (dickerer Wandfuß) | 
| Betonfertigteile Inspektionsschacht KBS 1200 | DN 1200 mm | • DN1200-Basis • AB Vertikalelement DN1200 • konisches Ende DN1200 oder Stahlbetonplatte DN1200 | mit Betonboden mit Kunststoffboden | DN 800 mm DN 800 mm | 
| Betonfertigteile Inspektionsschacht KBS 1500 | DN 1500 mm | • DN1500-Basis • Reduzierplatte DN1000/1500 oder DN1200/1500 • AB Vertikalelement DN1000 oder DN1200 • konisches Ende DN1000 - DN1200 oder Stahlbetonplatte DN1000 - DN1200 | mit Betonboden mit Kunststoffboden | DN 1200 mm DN 1000 mm | 
Arten von Montageschächten:
Je nach Anschlussanforderung werden folgende Revisionsschächte hergestellt:
- Vorübergehend
- Transient (Profiländerung)
- Abgewinkelt (≤90°)
- Abgewinkelt (≥90°)
- Initialen (blind)
- Kaskade
Die Fensterelemente werden geliefert mit:
- Gummidichtungen für den Anschluss
- im Schacht eingebaute kunststoffbeschichtete Klettergerüste
- Im Schachtboden integrierte Kunststoffverbinder
- Im Schaftboden integriertes Kunststoff-Kinetoskop
Für alle in den Schachtelementen verbauten Werkstoffe liegen entsprechende Konformitätserklärungen vor .
• HRN EN 1917:2002/AC:2008 Betonschächte und -schächte, unbewehrt, mit Stahlfasern und bewehrt
• HRN EN 476:2011 Allgemeine Anforderungen an Teile für die Entwässerung und Kanalisation
• HRN EN 681-1:2003/A3:2007 Elastomerdichtungen: Werkstoffanforderungen für Dichtungen für Rohrleitungen für Wassertransport und -ableitung – Teil 1 Vulkanisierter Kautschuk






























